Du befindest dich hier:
Startseite » Themen » Kultur » Detaillierte Pläne für Monheims Kulturraffinerie

Samstag, den 18. April 2020 | PETO-Blatt-Artikel

Detaillierte Pläne für Monheims Kulturraffinerie

Warum die Planung der K714 trotz der Corona-Krise weitergeht

Mit dem Umbau der ehemaligen Shell-Fassabfüllhalle zur Kulturraffinerie K714 soll ein langgehegter Wunsch vieler Monheimerinnen und Monheimer in Erfüllung gehen: eine echte Konzert- und Veranstaltungshalle in der eigenen Stadt. Planungen hierzu gibt es schon seit rund 20 Jahren. Zur Umsetzung ist davon bisher noch keine gekommen. Die jüngsten Konzepte hingegen haben jetzt einen Projektstand erreicht, mit dem der Stadtrat einen Baubeschluss fassen konnte.

„Die PETO-Fraktion hat sich für den Umbau der Fassabfüllhalle zur Kulturraffinerie ausgesprochen, weil wir in der Errichtung der Veranstaltungshalle eine einzigartige Chance für die Stadt sehen“, erklärt PETO-Fraktionsmitglied Lucas Risse. „Seit der Gründung der Monheimer Kulturwerke im Jahr 2018 haben wir bereits eine erhebliche Weiterentwicklung beobachten können. Die Errichtung der Kulturraffinerie ermöglicht es uns nun, das Kulturangebot in unserer Stadt auf völlig neue Füße zu stellen. Zudem hat die Reaktion der Bürgerschaft in der zurückliegenden Bürgerbeteiligung gezeigt, dass sich eine große Mehrzahl der Monheimerinnen und Monheimer sehr auf die Kulturraffinerie freut. Eine Reihe von Vorschlägen aus der Bürgerschaft sind in die Planung eingeflossen.“

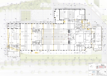
Wie sieht also der aktuelle Planungsstand aus?

Zunächst zur Erinnerung: Im Jahr 2016 konnte die Stadt einen Erbbaurechtsvertrag mit anschließender Kaufoption für die alte Shell-Halle abschließen. Damit war eine erste Grundlage für den Umbau zur Veranstaltungshalle geschaffen – und seitdem ist bereits einiges geschehen. Mithilfe einer Machbarkeitsstudie wurden die ersten grundlegenden Fragen geklärt, in einem Architektenwettbewerb wurde das Planungsbüro Bez + Kock ausgewählt und in mehreren Bürgerbeteiligungen hatten die Monheimerinnen und Monheimer die Chance, ihre Anregungen in die Planung einzubringen. Inzwischen liegt ein ausgereiftes Konzept vor.

Dieses sieht vor, die Geschichte der historischen Fassabfüllhalle möglichst zu erhalten und viele alte Bauteile denkmalgerecht aufzuarbeiten. Insgesamt soll die Kulturraffinerie aus einem großen und einem kleinen Veranstaltungssaal bestehen, deren gleichzeitige Doppelnutzung möglich ist. Eine einfahrbare Schubtribüne sowie mobile Trennwände im Hauptsaal ermöglichen außerdem eine noch variablere Nutzung der Säle. Zudem machen eine öffentlich zugängliche Dachterrasse sowie ein Restaurant die Halle auch unabhängig von stattfindenden Events nutzbar. Und auch von außen hat die Kulturraffinerie einiges zu bieten. So entstehen beispielsweise eine von der Wasserachse zum Halleneingang führende Freitreppe sowie auf der Seite der Rheinpromenade eine Veranda mit Sitzstufen. Zudem beinhaltet das Konzept einige verkehrslenkende Maßnahmen sowie den Bau eines Parkhauses. Insgesamt belaufen sich die Kosten für den Umbau der K714 auf rund 74 Millionen Euro.

Wofür genau soll die Veranstaltungshalle genutzt werden?

Ein wichtiges Merkmal der Kulturraffinerie ist, dass sie für ganz unterschiedliche Typen von Veranstaltung genutzt werden soll. Genauer gesagt sind drei verschiedene Nutzungsvarianten vorgesehen. Erstens sollen in der Halle Monheimer Veranstaltungen untergebracht werden, für die es zurzeit keine Räumlichkeiten gibt, wie beispielweise Abibälle, Karnevalsveranstaltungen oder die jährliche Berufsorientierungsbörse. Zweitens kann die Halle für Veranstaltungen der Monheimer Kulturwerke wie Theater, Musicals oder Konzerte genutzt werden und somit lokales und regionales Publikum anlocken. Die dritte Nutzungsmöglichkeit sieht eine kommerzielle Vermietung der Halle für Veranstaltungen von Firmen, Verbänden oder Dienstleistern wie Kongresse, Tagungen oder Messen vor. Das Ziel hierbei ist es, durch die Einnahmen aus dem dritten Bereich einen finanziellen Deckungsbeitrag für die ersten beiden Bereiche zu schaffen.

Doch macht es trotz der aktuellen Corona-Krise Sinn, die Planung fortzuführen?

Aufgrund der aktuellen Corona-Krise hat vor allem die CDU-Fraktion gefordert, das Projekt vorerst auf Eis zu legen. „Schaut man sich jedoch den Zeitplan für den Bau der Veranstaltungshalle an, so macht ein Planungsstopp allerdings nur wenig Sinn“, erklärt Lucas Risse. „Denn die voraussichtliche Eröffnung der Kulturraffinerie ist sowieso erst für Mitte 2024 geplant und liegt somit hoffentlich lange nach der Corona-Zeit. Das Planungsbüro und alle Baufirmen sind weiter arbeitsfähig. Es gibt damit keinen Grund, das Projekt zurückzustellen.“

 

Ähnliche Texte...

29.01.2019 | Pressemitteilung

Die alte Shell-Halle wird ein Veranstaltungssaal

PETO30plus!-Themenabend zur „Kulturraffinerie K 714“

Mit dem Umbau der ehemaligen Shell-Fassabfüllhalle zu einem Veranstaltungssaal wird es bald endlich soweit sein: Monheim am Rhein bekommt eine eigene Eventhalle - die „Kulturraffinerie K 714“...

weiterlesen...

16.02.2024 | Pressemitteilung

PETO30plus-Themenabend mit Kulturraffinerie-Baustellentour

Rohbauarbeiten für die Kulturraffinerie K714 sind so gut wie abgeschlossen

Die Kulturraffinerie ist das langersehnte Herzensprojekt vieler Monheimerinnen und Monheimer. Die geplante Veranstaltungshalle liegt direkt am Rheinkilometer 714. Wo seit dem frühen 20. Jahrhundert Schmieröle und Bitumen hergestellt und verladen wurden, wird bald schon ein facettenreiches Kulturprogramm stattfinden...

weiterlesen...

19.04.2022 | Pressemitteilung

Baubeginn für die Kulturraffinerie K714

PETO30plus!-Themenabend bietet Baustellenführung

Eine eigene Veranstaltungshalle für Monheim am Rhein? Dass dieser Traum bald in Erfüllung gehen wird, steht bereits seit längerem fest. Doch wann genau wird die Kulturraffinerie K714 eigentlich eröffnet? Und was ist der aktuelle Planungsstand? Um diese und viele weitere Fragen rund um die Kulturraffinerie zu beantworten, findet am Mittwoch, den 27...

weiterlesen...

© 2026 PETO